业务咨询:18010013889
展会接待:18911291019
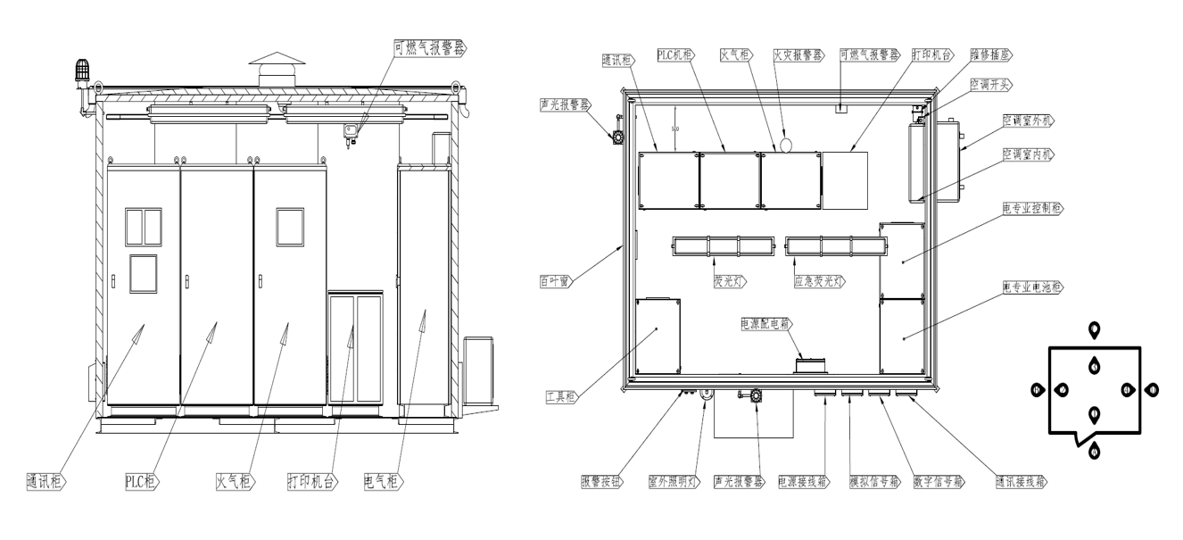
将设备间橇装化、工厂预制化,即将设备间本体、内部机柜、各种仪表、各类系统、连接线缆及附件高度集成,工厂验收后直接运输至现场使用。
传统设计复杂、占地面积受限、施工周期长、施工环境受限、质量控制受限、多厂家/部门协调困难,为仪表、设备、人员提供良好的运营环境。







长期维保长期维保是7*24在业主现场,以我们的技术能力作为业主技术的补充

定期维保定期维保是定期,比如按照季度,月,年为单位对设备进行巡检。排查隐患,提前预防充

紧急服务紧急服务是当现场出现问题,或者怀疑有隐患需要排查的时候,我们紧急服务,帮助用户解决问题